Biệt thự song lập ocean park 1 tại Gia Lâm, Hà Nội sở hữu vị trí đắc địa gần hồ điều hòa và công viên, diện tích linh hoạt 120–200 m², thiết kế 3–5 tầng hiện đại, tiện nghi đầy đủ. Dự án phù hợp an cư và đầu tư sinh lời lâu dài.
Biệt thự song lập Vinhomes Ocean Park 1 tọa lạc tại Gia Lâm, Hà Nội, liền kề với khu đô thị Vinhomes Ocean Park 2. Dự án nằm trong khu vực phát triển năng động, cách trung tâm thành phố khoảng 15–20 km, kết nối thuận tiện với các tuyến đường huyết mạch như vành đai 3, cao tốc Hà Nội – Hải Phòng và Quốc lộ 5.
Vị trí này mang đến sự thuận tiện tối đa cho việc đi lại, học tập, làm việc và kết nối với các trung tâm kinh tế – thương mại lớn. Biệt thự song lập Ocean Park 1 còn nổi bật nhờ cảnh quan xanh, gần hồ điều hòa và công viên rộng, tạo môi trường sống trong lành, yên tĩnh nhưng vẫn gần các tiện ích hiện đại.
Sở hữu vị trí đắc địa tại Gia Lâm, biệt thự song lập Vin Ocean Park 1 không chỉ là nơi an cư lý tưởng mà còn là cơ hội đầu tư sinh lời lâu dài, phù hợp cho cả gia đình và nhà đầu tư thông thái.

Tính đến nay, chủ đầu tư Vinhomes đã hoàn thiện và đưa vào sử dụng 1.011 căn biệt thự song lập tại 4 phân khu thấp tầng của dự án, mang đến đa dạng lựa chọn về diện tích và vị trí cho khách hàng.
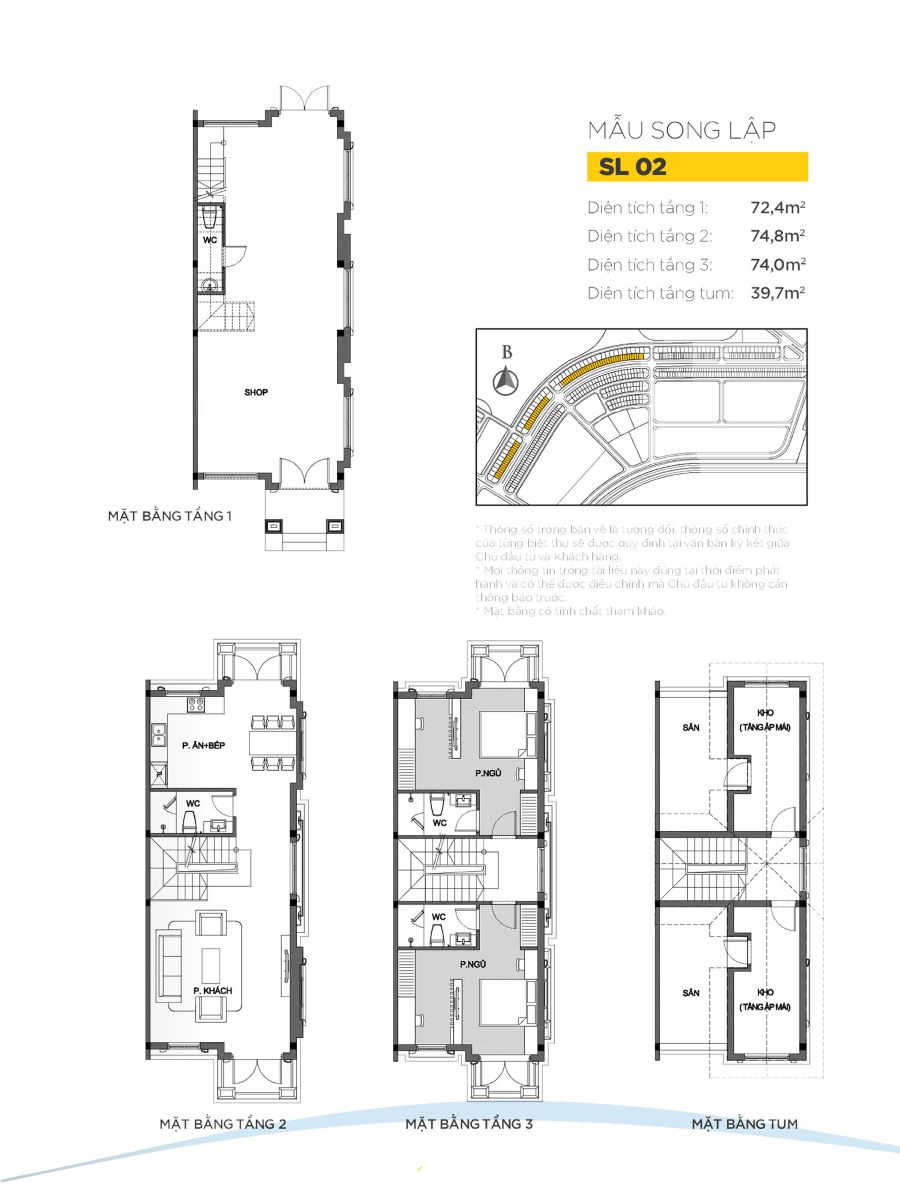
Biệt thự song lập Vin Ocean Park 1 có 3–5 tầng, thiết kế hiện đại, mặt tiền rộng, kết hợp sân vườn riêng và ban công thoáng.
Các căn được quy hoạch đồng bộ, tối ưu ánh sáng tự nhiên và thông gió, tạo cảm giác rộng rãi, thoải mái cho sinh hoạt gia đình.
Kiến trúc sang trọng, phong cách Địa Trung Hải và Châu Âu kết hợp tinh tế, mang đến không gian sống đẳng cấp, vừa hiện đại vừa gần gũi thiên nhiên.
Với mặt bằng đa dạng và thiết kế linh hoạt, biệt thự song lập Vinhomes Ocean Park 1 đáp ứng cả nhu cầu an cư lâu dài và đầu tư sinh lời, trở thành lựa chọn tối ưu cho khách hàng thông thái.

Biệt thự song lập Vinhomes Ocean Park 1 không chỉ nổi bật nhờ thiết kế sang trọng, mà còn được thừa hưởng tiện ích đồng bộ, hiện đại, đáp ứng mọi nhu cầu sống của cư dân:
Nhờ tiện ích đồng bộ và hiện đại, biệt thự song lập Vinhomes Ocean Park 1 mang đến không gian sống tiện nghi, thoải mái và đẳng cấp, đồng thời nâng cao giá trị đầu tư cho cư dân và nhà đầu tư thông thái.

Biệt thự song lập Vinhomes Ocean Park 1 hiện là sản phẩm bất động sản cao cấp, tiềm năng đầu tư lớn, với mức giá tham khảo dao động theo phân khu, diện tích và vị trí căn:
Phân khu San Hô: 196 căn, diện tích 103,7 – 165 m², giá tham khảo khoảng 30 – 45 tỷ đồng/căn.
Phân khu Sao Biển: 257 căn, diện tích 122 – 150 m², giá tham khảo khoảng 28 – 34 tỷ đồng/căn.
Phân khu Ngọc Trai: 311 căn, diện tích 141 – 183 m², giá tham khảo khoảng 38 – 52 tỷ đồng/căn.
Phân khu Hải Âu: 247 căn, diện tích 142 – 172 m², giá tham khảo linh hoạt theo vị trí, sẽ được tư vấn chi tiết khi liên hệ.
Yếu tố ảnh hưởng đến giá
Vị trí căn: Gần hồ, công viên hoặc trung tâm tiện ích sẽ có giá cao hơn.
Diện tích, mặt tiền và số tầng: Căn lớn, mặt tiền rộng, số tầng nhiều giá trị cao hơn.
Tiện ích đi kèm: Biệt thự phù hợp vừa ở vừa kinh doanh hoặc cho thuê sẽ có mức giá cao hơn.
Tiềm năng đầu tư
Biệt thự song lập Ocean Park 1 nằm tại Gia Lâm – Hà Nội, khu vực đang phát triển nhanh chóng, mang tiềm năng tăng giá cao.
Sản phẩm thích hợp an cư lâu dài hoặc đầu tư sinh lời, vừa ở vừa khai thác cho thuê, đảm bảo lợi nhuận dài hạn.
Với mức giá hợp lý so với vị trí và tiện ích đồng bộ, biệt thự song lập Vinhomes Ocean Park 1 là lựa chọn ưu tiên cho khách hàng muốn sở hữu không gian sống sang trọng, đẳng cấp và giá trị bền vững.
Chủ đầu tư Vinhomes và các đối tác phân phối áp dụng chính sách bán hàng linh hoạt và minh bạch, giúp khách hàng dễ dàng sở hữu biệt thự song lập Ocean Park 1, đồng thời tận dụng cơ hội đầu tư lâu dài.
Đặt cọc giữ chỗ: 50–100 triệu đồng cho quyền ưu tiên lựa chọn căn.
Ký Hợp đồng mua bán: thanh toán 15–20% giá trị căn (bao gồm đặt cọc).
Các đợt thanh toán tiếp theo: chia nhỏ theo tiến độ bàn giao, thường là 15–20%/lần, giúp khách hàng dễ dàng quản lý tài chính.
Thanh toán sớm 95–100% giá trị căn hộ được hưởng chiết khấu ưu đãi, tối đa 10–15% tùy đợt.
Hỗ trợ vay lên tới 70–80% giá trị biệt thự + VAT.
Thời gian vay linh hoạt, kỳ hạn dài, giảm áp lực tài chính ban đầu.
Có thể áp dụng các gói “0% lãi suất + ân hạn gốc” trong 18–24 tháng đầu (tùy chương trình).
Hỗ trợ nội thất cơ bản hoặc gói hoàn thiện sân vườn, ban công, tiện ích căn hộ (tùy chương trình).
Miễn phí hoặc giảm phí quản lý 1–2 năm đầu cho khách hàng thanh toán sớm.
Tư vấn thủ tục pháp lý, hỗ trợ sổ đỏ lâu dài cho khách Việt Nam; hỗ trợ tư vấn pháp lý, giấy tờ cho khách nước ngoài.
Hỗ trợ quản lý, bảo trì tiện ích chung và an ninh khu biệt thự.
Hướng dẫn sử dụng tiện ích, nhận nhà đúng tiến độ.
Hỗ trợ khai thác cho thuê hoặc kinh doanh nếu khách hàng có nhu cầu đầu tư sinh lời.
Nhờ chính sách bán hàng tham khảo linh hoạt, minh bạch và ưu đãi hấp dẫn, biệt thự song lập Vinhomes Ocean Park 1 trở thành lựa chọn tối ưu cho khách hàng an cư lâu dài và nhà đầu tư thông thái, vừa sở hữu không gian sống đẳng cấp vừa đảm bảo giá trị bền vững.
Kết luận
Biệt thự song lập Vinhomes Ocean Park 1 là lựa chọn đáng giá cho cả nhu cầu an cư và đầu tư. Với vị trí chiến lược tại Gia Lâm, Hà Nội, thiết kế hiện đại, diện tích đa dạng, kết hợp tiện ích đồng bộ và không gian sống xanh, sản phẩm đáp ứng hoàn hảo tiêu chuẩn sống cao cấp cho mọi gia đình.
Mức giá tham khảo hợp lý, chính sách bán hàng linh hoạt cùng tiềm năng tăng giá trong tương lai, giúp khách hàng dễ dàng sở hữu và khai thác giá trị lâu dài.
Để được tư vấn chi tiết, cập nhật giá mới nhất và lựa chọn căn phù hợp, khách hàng có thể liên hệ trực tiếp Vinhomes Miền Bắc:
Hotline: 0943.238.228
Website: https://vinhomesmienbac.com.vn
Vinhomes Miền Bắc luôn đồng hành, hỗ trợ khách hàng từ chọn căn, tiến độ thanh toán, thủ tục pháp lý đến bàn giao và quản lý sau mua, giúp việc sở hữu biệt thự song lập Ocean Park 1 trở nên dễ dàng, an tâm và bền vững.